Trilocale piano alto con box – Zona Maggiolina

Via Cagliero 4


€ 440.000
 
85 mq
 
2
 
1

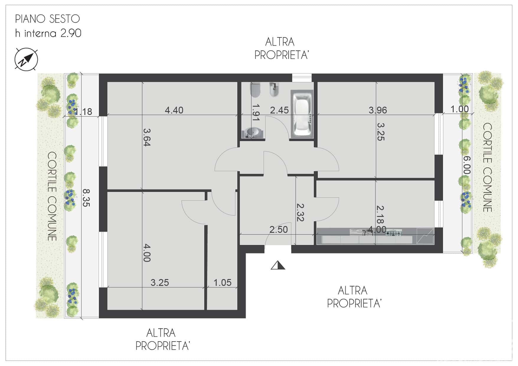
Via Cagliero 4, quartiere Maggiolina, in contesto residenziale anni ’60, con servizio di portineria e ascensore, proponiamo in vendita appartamento trilocale di 85 mq con tripla esposizione, al 6° piano di 8 complessivi, così composto:

ingresso, soggiorno, cucina, 2 camere matrimoniali, bagno, 2 ampi balconi, cantina.

Completa la proprietà un comodo box nel cortile interno, richiesta: € 30.000 ( misure: mt 4,40 x 2,57 con altezza mt 2,18 – ingresso larghezza: 2 mt ).

Appartamento luminoso, con affacci aperti e piacevoli, andrà personalizzato con un intervento di ristrutturazione.

Posizione molto comoda, a due passi da tutti i negozi, a pochi minuti a piedi da 2 linee metropolitane ( M3 gialla Sondrio e M5 lilla Istria e Marche ).

Siamo a Vostra disposizione per ulteriori informazioni.

Volpi Case s.r.l. gestisce la vendita con incarico in esclusiva.

  • Tipologia: Trilocale
  • Terrazzo: No
  • Balcone: 2
  • Giardino: Condominiale
  • Cantina: Si
  • Solaio: No
  • Esposizione: Tripla
  • Box auto: Si
  • Riscaldamento: Centralizzato a radiatori
  • c-energ-kwh-mq: G-157,55
  • Fabbricato: Anni 60
  • Piano:
  • Ascensore: Si
  • Portineria: Si
  • Rendita catastale: 800.51
  • Tipologia: Trilocale
  • Terrazzo: No
  • Balcone: 2
  • Giardino: Condominiale
  • Cantina: Si
  • Solaio: No
  • Esposizione: Tripla
  • Box auto: Si
  • Riscaldamento: Centralizzato a radiatori
  • c-energ-kwh-mq: G-157,55
  • Fabbricato: Anni 60
  • Piano:
  • Ascensore: Si
  • Portineria: Si
  • Rendita catastale: 800.51

Posizionamento

Maggiori informazioni

Per avere maggiori informazioni se questo specifico immobile potete contattarci ai seguenti numeri oppure potete scriverci una mail compilando il form che trovate qui accanto.

Ufficio

+39 02 67071616

Orari

Dal Lunedì al Venerdì:
9.00 – 13.00 / 15.30 – 19.30
Sabato:
9.30 – 12.30

WordPress Video Lightbox
Share This